Notes and news — August 1979In this issue:
AIA Conference display
- AIA Conference display
- South Lancashire colliery visits
- GLIAS goes down t'pit and to t'mill (and also visits a motorway service area!)
- Pigeons and pilasters
- Au revoir, Hugh
- Gazetteer of London industrial archaeology
- Gazetteer of London industrial archaeology: South Kensington additions
- Gazetteer of London industrial archaeology: Brent
- Sun Flour Mills, St. Leonards Road, Bromley by Bow
- Warehouse — 33 Bermondsey Wall West
- Royal Albert Dock incinerator plant
- Books
- 063news.pdf
GLIAS is going to have a display at the AIA Conference at Ironbridge with a theme 'The Dale in London'. Many examples of the products of Coalbrookdale, etc, must survive in London; here are those I know of:
Coalbrookdale Ironworks
Blow-up (Macclesfield) Bridge on Regent's Canal; Water Carrier statue outside Blackfriars tube station; lamp standards outside City of London school, Blackfriars; The Eagle Slayer statue outside Bethnal Green Museum; the gates to the 1851 exhibition, Hyde Park, near Albert Hall; Greenwich Park bandstand.
Lilleshall Ironworks
West Ham beam engines (the engines at Kempton Park were scrapped a few years ago).
Jackfield Tiles
Two works operated in Jackfield: Maws (1850-1969) and Craven Dunhill (1871-1952). Those represented the largest tile-works in the world. There must be many examples surviving, but the only known ones are: Old Tigers Head, Lee Green; Russell Square tube station; Warrington Hotel, Maida Vale.If you know of any additional examples of the work of these four companies let either myself or Elizabeth Wood know. Dave Perrett
South Lancashire colliery visits
The second joint GLIAS/Newcomen Society surface visit to Parsonage, Bickershaw and Sutton Manor Collieries on 26 June found things almost unchanged since April. (For a note on the first visit of 19 April see GLIAS Newsletter June 1979). At Parsonage the smartly-kept Galloway winding engine of 1923 was in steam but seemed to have little to do. After admiring the huge machine we were very kindly treated to a meal in the Colliery Canteen before continuing. We were shown the pre-war reciprocating compressors, obtained second-hand from another colliery and the bank of primitive Lancashire boilers. Some of these are fired with methane from the mines and we saw round the Methane House which supplies them. Our guide had his own excellent collection of antique fire-fighting equipment which we saw when returning our safety helmets.
At Bickershaw Colliery Mr. P.A. Taylor, the engineer who acted as guide, generously produced a sheet of information on the steam plant for each member of the group. We were joined by Ian Race from Preston and two friends. They are busy restoring a 144-ton steam dredger at Glasson Dock.
In the winding house for No. 3 shaft at Bickershaw the tarpaulin sheet which had hung between the new electric motor with its control cabin and the 1891 Walker Brothers steam engine had been removed and it could be clearly seen how the conversion was to take place. The motor will drive the double clutch winding drum directly from one side. The steam engine is to be cut up. Earlier the John Wood & Sons steam winder of 1875 on No. 1 shaft had been in use, but by the time we got into the house the driver had gone to lunch. On the second visit the Walker Brothers horizontal cross-compound compressor engine of unknown date was easier to see, it was not leaking steam everywhere as before. We finished at Bickershaw with a walk to the locomotive engine shed. A pair of diesel engines have taken over from the Austerity 0-6-0ST steam locos. Two of these latter were at the back of the shed with two more dumped outside.
Sutton Manor Colliery near St. Helens, our last visit of the day, was by far the best from a steam engine point of view. Both winding engines were in use and the larger of the two Walker Brothers horizontal cross-compound Compressor engines. The latter had been stripped down in April but was now hard at work making a very hefty thud each cycle. This is an exciting machine for tape-recording enthusiasts. It was built in 1943. The unique mixed-pressure turbine system which uses either exhaust steam from the winders or takes steam directly from the boilers was functioning as usual. Some of us looked round the power-station-type high-pressure boiler and the bank of Lancashire boilers. As at Parsonage, some of the latter run on methane. At Sutton Manor a new colliery district is being opened which is said to be the gassiest in Europe. Before the coal is removed horizontal bore holes are made above the seam to release the gas, which is piped to the surface. More of this gas is produced than can be burnt in the boilers and much goes to waste. Undoubtedly the most exciting item, as last time, was the Yates and Thorn steam winder of 1914, hard at work performing the duty for which it was designed, winding coal continuously.
Our guide spoke of the steam complex at Sutton Manor lasting until 1984/5. The winders will be the first to go. Perhaps the plentiful supply of methane accounts for this late proposed date of modernisation. One wonders, will it really last so long?
Many thanks again to the NCB and to their guides who showed us round. It is hoped to arrange a third visit later in the year (or next year). Bob Carr
GLIAS goes down t'pit and to t'mill (and also visits a motorway service area!)
On 16 June a full coach load went visiting in Staffordshire. After an uneventful journey we arrived at Chatterley Whitfield colliery to be welcomed by curator Jonathan Bryant and lunch before our visit.
We started in the clock house/lamp room, suitably re-decorated in 'Coal Board green' where, in parties of ten; we were equipped with miners' helmets and lamps for an underground tour conducted by an ex-miner. The pit has been arranged in galleries exhibiting stages in the development of mining. It was a fascinating tour and one could appreciate what working conditions for miners are like. The visit ended in the winding engine house, not yet open to the general public, where the scope for the planned museum was evident and we could admire the remaining winding engine.
Next stop was the flint mill at Cheddleton. En route we came to a lane too narrow for the coach, but by excellent manoeuvring our driver backed up and turned round. Our arrival was therefore delayed and we missed witnessing a calamity and only saw the result. Shortly before our arrival the axle of one of the great water wheels had sheared and Cheddleton was no longer the only English mill with two working water wheels. Time was limited and the quick visit possible only whetted the appetite for more.
Southward bound the coach started to make peculiar noises, but the driver nursed us into Corley service area where we had an unexpected two-hour visit before Midland Red rescued us with a reserve coach. Late and tired we arrived back in London, but we had had a most interesting and enjoyable day. Bill Firth
Footnote: I have just received an apology from Grey-Green coaches over the breakdown. They have offered us a reduction on our next outing, which will be in mid-October. At the last Committee Meeting GLIAS voted to send the small profit from the coach trip, plus an additional amount to the Mill Trust to aid the repair. It will probably cost many hundreds of pounds, but we hope our ₤25 donation will help start a repair fund rolling. We look forward to seeing the mill with both wheels working again. Dave Perrett
St. Mary Overy's Wharf, built in 1882, was one of the most ostentatious and unique warehouses on the Thames. Although criticised by contemporary architects, the building is a magnificent example of late Victorian architecture.
It may soon be demolished to allow St. Saviour's Dock to accommodate the 'Discovery', currently in the care of the Maritime Trust. The Recording Group are therefore keen to complete a survey before its unique character is lost.
The training session held on 12 May was well attended and a team of fourteen spent a profitable day on the site. Most people managed nearly a full day's recording and much useful information was obtained.
Excellent photographs were taken of the warehouse and artefacts in the building. The exterior was difficult to photograph due to the proximity of adjacent buildings and the poor lighting conditions associated with the site.
Bet and John Parker's team compiled excellent notes describing the interior features, construction and objects of interest. These have been considerably expanded by reference to Wharves and Warehouses Committee Manuscripts. We have since been able to correlate several structural features with various items of equipment referred to in these Reports.
Several useful sketches of the exterior of the building were made by Jim Barr and these are of great assistance in the detailed drawing of the elevations.
The survey team practised triangulation techniques and produced an acceptable First Floor plan of this irregular building. At a subsequent recording session on 19 June we were able to complete the site plan including St. Saviour's Dock and the riverside jetty. We were also able to record the finer details of the north and east elevations. Malcolm Tucker gave valuable assistance by surveying the roof structure and adding to the collection of photographs.
Time permitted a further look at the hydraulic system and several interesting features were noted. Part of an unusual hydraulic crane assembly remains on the outside of the east wall which cannot at present be satisfactorily explained. One crane-cab survives with all controls and linkages preserved under 12 inches of guano. We would therefore like to hear from any member with under-nourished rhubarb or runner beans who could record the hydraulic system in more detail.
We have examined the 1920 revision of the insurance plan held in Swiss Cottage Library and several useful facts were noted. The plan shows the building to have a tiled roof with eight skylights, four in each risk. Although the building now has a slate roof, the timbers still show evidence of the previous skylights.
A further recording session will be held on Saturday August 18 during which we hope to complete details of the vaults and transverse section. All members willing to participate will be welcome.
PS. If any member is particularly interested in the site in general or hydraulics in particular they should contact me directly. Dave Hamilton
5/7/79 St Mary Overy's Wharf SE corner elevation
In GLIAS we reckon to have a 'turn over' of members who leave us because they leave London, but few leave for such an interesting reason as Hugh Marks who is going to the Turks and Caicos islands (bet you didn't know where they are, either?!) in the West Indies to set up a library service with the VSO. We would like to thank Hugh for his work on the Committee and in the Recording Group, wish him the best of luck with his new job and hope that if he returns to London he will come back to GLIAS.
Gazetteer of London industrial archaeology
Reading other societies' newsletters I find the editors are usually cajoling their members to supply material, this I have never had to do and you will have noticed there are even some new names appearing among the contributors. I did think when in the last issue I started a series I could not possibly keep up myself that perhaps I was sticking my neck out, but I am delighted to say that I have received additions to the last gazetteer entry (South Kensington) and another whole section from Malcolm Osmondson. Brent being a very large area Malcolm has arranged the entries under the headings; transport, manufacturing industry, housing, service industry, street furniture and Wembley exhibition site, instead of the 'walk' format used for South Kensington. It would be nice to have another whole borough for the October newsletter (reaching me by 15 September, please), but single entries are also welcome. Brenda Innes
Gazetteer of London industrial archaeology: South Kensington additions
20. THE SERPENTINE BRIDGE 1824
Designed by Sir John Rennie and built by the well-known contractors Jolliffe & Banks, also responsible for Southwark, Waterloo and London bridges — all now gone. Derek
Derek also mentioned an old (horse?) fire station in Ladbroke Road, Notting Hill Gate; (does anyone know any more about this? >>>) and added to our information on anonymous pillar boxes (item No. 8) which were made for four years before 1883, but to a different design with a higher aperture.
21. Two HEXAGONAL PILLAR BOXES c.1879
Both in Ladbroke Grove, W10, one at the junction with Oxford Gardens and the other at the junction with Telford Road.
22. KENSAL GREEN CEMETERY Opened 1832
An early, private enterprise, effort to alleviate the unpleasant overcrowding of London by the General Cemetery Company produced architecturally one of the more outstanding Victorian cemeteries. It covers 54 acres (two thirds actually, in Kensington, the rest in Hammersmith) and contains the graves of novelists Thackeray and Trollope, Blondin the tightrope walker and, most important of all, Isambard Kingdom Brunel.Gazetteer of London industrial archaeology: Brent
Transport
23. STONEBRIDGE GARAGE c.1909 199841
Built originally as a tram depot and subsequently used for trolley buses, then buses. Due for closure in the near future pending the completion of a new garage under the Westway viaduct at Westbourne Park.
24. WEMBLEY HILL CUTTING Adj. Park Lane, Wembley 1905 185854
Cutting of over a mile long by upwards of 70 feet deep by the Great Central Railway through difficult subsoil. Despite massive retaining walls a major "slip circle slide" occurred in 1918 resulting in the earth of the hillside being forced under the retaining walls and lifting up the track. The railway company acquired more land and was able to reduce the gradient of the embankment. British Rail carried our further reinforcement of the cutting in the early 1960s.
25. WEMBLEY HILL STATION 1903 190854 (>>>)
Great Central Railway station almost unaltered since built, but recently re-named 'Wembley Complex'.
26. SUDBURY TOWN STATION (B.R.) 1903 168853 (>>>)
Another Great Central Railway station remaining virtually intact.
27. SUDBURY TOWN STATION (L.T.) 1931 169849
One of the best examples of the work of Charles Holden, an architect who had a major influence on the decoration and design of Underground stations. This station is now a listed building and was one of five chosen in London to be given a facelift to restore it to its original splendour of polished wood and brass.
28. NORTH WEMBLEY STATION 1913 176862 (>>>)
'Wayside' tube station.
29. GRAND JUNCTION CANAL PADDINGTON ARM 1801
Known as the "Long Level" this branch provided 15 miles of lock-free canal giving fast access to central London from the Grand Junction Canal at Bulls Bridge to Paddington Basin. The branch passes through Brent for about 2½ miles in the SW corner of the borough, where at Stonebridge Park it crosses the North Circular road by an aqueduct built in the 1930s.
30. WELSH HARP RESERVOIR 1334/5 215370
The Grand Junction Canal Company had a 3½ mile feeder from the Brent river in Kingsbury through Willesden to Lower Place in 1810, but increasing water shortage occurred after the opening of the Regent's Canal in 1820 necessitating the building of this reservoir by the Regent's Canal Company. It was extended in 1837 and again in 1853-4.
31. KENSAL GREEN RAILWAY TUNNEL Adj. Harrow Road, Kensal Green, NW10 1836/7
First London railway tunnel by London & Birmingham Railway, contemporary with Primrose Hill. Now the slow line.Manufacturing Industry
32. G.E.C. WORKS, East Lane, Wembley 1922 180865
Site originally used by F.U. Hooper & Co. Ltd, between 1917-1922, for the manufacture of Sopwith aircraft during the war years, then reverting to motor car bodies in 1919. G.E.C acquired the site in 1922, opening their Hirst Laboratories in 1923 and expanding over the years until the site now occupies over 65 acres.
33. WRIGLEY'S FACTORY 1926 175868
Chewing gum factory, later used as a laundry (or at least marked as such on the O.S. map of 1957) and at present being divided into small self-contained units. Architecturally quite interesting.
34. HOLLAND & HOLLAND LTD. 906 Harrow Road, NW10 1894 232826
Five floor, purpose-built (?) factory for Holland & Holland the gunsmiths occupying a triangle of land between the railway and Harrow Road. (>>>)
35. VANDEN PLAS BODYWORKS, Kingsbury Works, Kingsbury Road, NW9 1923 205883
Site originally used by the Kingsbury Aviation Company who, during the period 1917-1919, built Sopwith Snipe aircraft, was re-named Kingsbury Engineering Company in 1919 and went into liquidation in 1921 after some unsuccessful attempts at scooter and motor car manufacture. Vanden Plas, now part of British Leyland, have over the years been involved in making bodies for such classic cars as Alvis, Armstrong Siddeley, Bugatti, Daimler, Bentley and Rolls Royce. Although still a viable company with full order books, they are due to close in November 1979 as part of the British Leyland rationalisation policy, production being moved to Coventry and Abingdon.
36. GENERAL MOTORS LTD. Stag Lane, NW9 205898
Again a site used for aircraft manufacture, this time by de Havilland who produced their bombers here. Frigidaire manufactured refrigerators here and General Motors still make some car components, although plans are imminent to move to new accommodation at Milton Keynes.
37. MULLINER PARK WARD DIVISION, ROLLS ROYCE LTD. 473 High Road, Willesden, NW10
One of the last coach building companies in Britain, associated with the motor industry since its earliest beginnings in 1896 with Daimler in Coventry, this Northampton based company acquired its present site at the turn of the century. Some of the earliest buildings with mock timber framing were converted from stables for a jobmaster in the early 1900s. (>>>)
38. H.J. HEINZ CO. LTD. / UNITED BISCUITS LTD. Waxlow Road, NW10 198835
Two of Brent's early major industries arrived in the 1900s. Heinz was an important user of the canal as can be seen from the factory's extensive frontage onto the canal, where raw beans and tomato purée were brought in from the docks and canned goods left the same way.
39. FOUNDRY & WORKSHOPS OF SAXBY & FARMER LTD (present occupier unknown) 1860s Canterbury Road, Kilburn 252832
Once the foundry and workshops of Saxby & Farmer Ltd. pioneers in railway points and signals systems, the last casting was produced here in 1903 when manufacture was transferred to Chippenham. In 1920 the firm was incorporated into Westinghouse Brake & Saxby Signal Company and then re-named in 1935 the Westinghouse Brake & Signal Company.Service Industries
40. A. GUINNESS & SON LTD. Park Royal, NW10 1930s 193825
1930s complex covering a vast acreage with its own rail terminal and a herd of dairy cattle!
41. METROPOLITAN WATER BOARD PUMPING STATION St. Michaels Road, NW2 1905 (>>>)
Impressive main engine house (steam equipment removed) and chimney. Plant includes three blast injection 160h.p. diesels (Merrlees, Bickerton & Day, Stockport, 1913).
42. WHITE HEATHER LAUNDRY Alric Avenue, NW10 (date?) 209842
Now divided into a number of smaller units (including one cultivating bean sprouts). Contains a number of wells, one being the deepest artesian well in the U.K. — 2,225 ft., bored in 1911 — none of which is in use at present. Rumoured that Queen Victoria's laundry was done here, but no evidence as yet to support this.
43. WEMBLEY DUST DESTRUCTOR Alperton Lane, Alperton 1935 177830
Built by Heenan & Froude, who also built Blackpool Tower, this plant was designed to deal with 100 tons of refuse in an 8-hour shift after it become no longer possible for Wembley to dispose of its refuse by barging it down the Grand Junction Canal to dumping grounds at West Drayton. An ultra-modern plant of its time, it catered for the separation of all saleable material such as metal, rags, glass, paper and bones, but became more and more difficult to operate as the amount of plastic increased and coal cinders decreased and was closed in 1975, the chimney being demolished in 1978.Street Furniture
44. TRIANGLE Wembley (date?) 189852
Cast-iron railings around public convenience and seat dedicated to John Lyon the founder of Harrow School.
45. LAMP POSTS (date?) 164852
Cast-iron lamp posts, converted from gas to electricity, can be seen in some areas of the borough; the ones around the Sudbury Town district having been cast by Clay Cross Company ironfounders and show an interesting variety of designs.
46. JUBILEE CLOCK Harlesden 1888 216833
A listed building in Harlesden High Street soon to be incorporated into a pedestrian-only shopping precinct.Housing
47. METROPOLITAN RAILWAY HOUSING in Quainton, Verney, Aylesbury & Chesham Streets NW10 1880-1925 207861
Housing estate of 140 late 19th-century cottages, much extended in 1925 with semi-detached houses built by industrialized methods using precast concrete sections. (>>>)
48. GREAT CENTRAL RAILWAY HOUSING in Gresham & Woodhayes Roads, NW10 1898-1900
Terraced housing for G.C.R. employees working at Neasden.
49. LONDON & NORTH WESTERN RAILWAY HOUSING Harley Road, IMU1 0 1880 214831
Terraced housing built for L.N.W.R. employees.
50. MOYNE PLACE Twyford Abbey Road, NW10 1945 194831
Model housing estate designed by Charles Hepworth for employees of Guinness at nearby Park Royal.
51. ROE GREEN GARDEN VILLAGE 1920 205891
This 24-acre estate was built by Airco Ltd, for its aircraft workers.
52. GRAND JUNCTION CANAL COTTAGE Twyford Abbey Road, NW10 19th c 197832
A lengthman's cottage.
53. BRITISH EMPIRE EXHIBITION SITE 1924 19x85x
This site covering 216 acres has many relics of the 1924 exhibition including the stadium itself, the Palace of Engineering, the Palace of Industry, the Palace of Arts and a small section of the never-stop railway which ran from near Wembley Park station to the stadium and back, a distance of about 1½ miles. The Palace of Arts and the Stadium are now listed buildings but, despite efforts by GLIAS and the Wembley History Society, the Palace of Engineering which covers 13 acres has not been given the same protection and will almost certainly be demolished in the near future. The side of the Palace facing the main approach to the Stadium has three entrances all of which were named after famous engineers; Watt and Stephenson gates still have the names over them. From the eastern side you can obtain a splendid view down the full length of the Hall of Science and Technology, now completely empty and open to the elements with only the skeleton of the roof structure remaining. The extensive use of ferro-concrete for virtually everything on the site, from drinking fountains upwards, enabled the entire exhibition to be completed in only fifteen months. At its closure various pavilions of the exhibition were sold off piecemeal and have ended up serving other purposes throughout the country. Nigeria pavilion is a laundry in Glasgow, East Africa a furniture factory in Letchworth, Sierra Leone is a restaurant in Ireland, etc, etc. In 1974 the Wembley History Society produced a special edition of its Journal and an illustrated booklet to commemorate the Fiftieth Anniversary, copies of both are, I believe, still available. Malcolm OsmondsonSun Flour Mills, St. Leonards Road, Bromley by Bow, London E3
Jim Barr, who lives nearby, unsuccessfully sought access to this site in early 1977, when the premises had already been disused for some years. Not until demolition had started was a cursory survey possible. This short report, prepared by David Willis and Jim Barr after some 1½ hours on site plus local library research, is the result.
Background
The River Lea has been used for centuries as a source of water power and a means of transport for the industries that grew up along its banks. Corn milling, fulling of cloth, linseed oil crushing, flour and rice mills are amongst those that have been recorded in the Bromley area. Many of the mills changed their functions several times, as shown on maps and documents by changes of name.
Many local areas took their names from the type of group of mills e.g. Four Mills at the junction of Bow Creek, the River Lea and the Limehouse Cut. The factories here included a distillery (Four Mills Distillery), a rice mill and a flour mill. The two mills were on opposite sides of Limehouse Cut, that on the northern bank being long demolished. It appears that this was the original flour mill (Ordnance Survey 1867). The other mill building — Rice Mills in 1867 — stood on a tongue of land bounded on the east by the River Lea and on the north and west by the Limehouse Cut. The river and canal connected on the north side by the Bow floodgates and tidal lock. Amongst the buildings on this site in recent years, the wheat silo (Fig. 1) was a conspicuous landmark from the northern approach road to the Blackwall Tunnel which runs parallel to St Leonard's Street.
Fig. 1
There is a reference to auction of one of the mills (that on the northern bank at Coventry Cross Court?) in 'New Times' of 14 June 1827: 'The mills have the advantage of loading and unloading from the barges into the mill. The premises are freehold and exonerated from land tax. They stand on nearly five acres of ground. It is a strongly erected flour mill, with seven pairs of stones, driven by a 30h.p. steam engine capable of doing 400qts per week, with granary, two bolting mills, dressing and smut machines, sack tackle, a kiln house with reverbatory furnace, tartaric acid and boiling house and furnace retort houses, with coke ovens, drying houses, colour mill and machinery, laboratory, pumps and plentiful supply of water.'
By 1867, the St Leonard Street mill was shown as the Bromley Mills (flour) and from 1875 until 1890 was known as the Bingemann Jacob Steam Flour Mill, Bromley. In 1890, it was occupied by the Sun Flour Mills Ltd, which became linked in 1932 with Associated London Flour Millers Ltd. In 1941, the nearby Bow Mill of J W French and Co Ltd (an old established milling business using the brand name Frenlite) was bombed and French's took over the Sun Flour Mills. The mill was functioning fully by 1952 following extensive rebuilding and conversions. Additions included a despatch silo completed in 1958 and a pneumatic grain handling system (blowlines) installed about 1965. In March 1972 (?), the owners became Spillers-French Ltd and it is believed the mill closed not long afterwards.
Fig. 2 The site — 1963
There has been extensive rebuilding over the years on the site. Everything there until recently appears to have been built since 1894. At that time, the mill was a yellow brick building which itself had replaced another flour mill some 30 years earlier. In 1894, an 'old' flour silo was referred to as having 33 bins for incoming wheat. By 1963 there were two silos (Fig. 2), that marked 'B' being demolished by a dust explosion on Saturday 7 August 1965 when 4 were killed and 38 were injured. Silo 'A' (Fig. 3) remained, together with a complex of buildings developed around the older warehouse (Fig. 4). The site of the demolished silo was later covered with a canopy and used as a despatch area, although Figs. 3 and 4 show a group of small buildings (late 1978).
The main mill building (1920s?) was an 85-foot high, seven-storey reinforced concrete structure (Fig. 5). The interior is shown in Fig. 6. This building contained the main production machinery. The despatch silo at its eastern end consisted of 20 individual chambers (four of which were subdivided), each of 3,000 cu.ft. (giving a total holding capacity in excess of 2000 tons of flour).
Wheat was received into the screening room at the western end of the mill (via the dryer) by two blow-lines (one for soft wheat at seven tons/hour, the other for hard wheat at eleven tons/hour) from the silo marked 'A'. This was also probably a 1910-1920s building, being of reinforced concrete with brick cladding. It had a ground area of 88 ft. x 55 ft. and was 65 ft. high. It displayed the name 'Sun Flour Mills' towards St Leonards Street (Fig. 1). It contained 57 silos each of 3,000 cu.ft. (about 70 tons of wheat). An inverted pyramid chute at the base of each silo allowed bagging of the contents through an iron slide mechanism. It was supplied by a pneumatic system (Figs. 7 and 8) which allowed river barges to be unloaded at up to 35 tons/hour.
Demolition of the buildings started in May and was completed in July 1979. It is proposed to erect four warehouse units and ancillary offices on the site.
Records
A copy of this report, with additional photographs plus some historical documents has been deposited at the Local History Library, London Borough of Tower Hamlets, Bancroft Road, London E1.
![]()
Fig. 3 Fig. 4
![]()
Fig. 5 Fig. 6
![]()
Fig. 7 Fig. 8
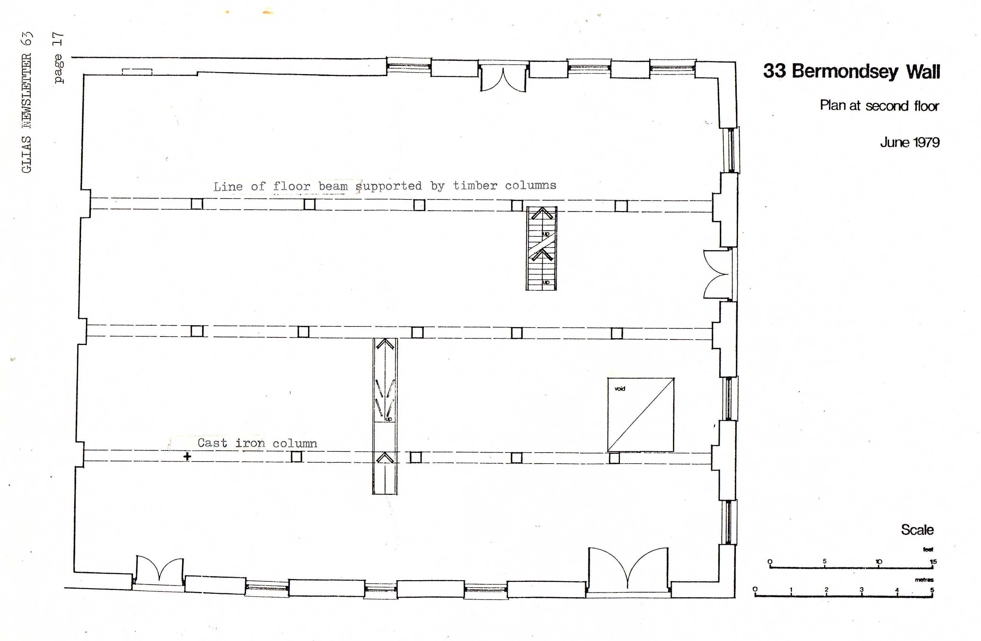
Warehouse — 33 Bermondsey Wall West, London SE17 [OS Ref. TQ 342796]
This was one of three training sites visited on 12 May. The others, St. Mary Overy Wharf and Pickford's Wharf, will be fully written up as part of a publication on this area.
Location sketch
Context
33 Bermondsey Wall West is one of many warehouses built in the 1840-80 period which closely crowded the Thames between London Bridge and Rotherhithe. Typically, it has been used as a granary, being served by lighters, presumably from ships unloading in Surrey Commercial and Millwall Bocks and in later years as a general store before finally becoming disused.
The Building
This Thames side building known as East Lane Wharf has East Lane Stairs to its East and adjoins No. 31 on the West. It is approximately rectangular, 60ft x 47ft, the southern side being slightly convex as presumably when it was constructed it followed the lines of two earlier buildings on the site. It is of yellow stock bricks with slate roof and timber floors and open staircases. Where it adjoins No. 31 there has been some subsidence (the pre-existing wall of No. 31 is now the party wall). It has a ground floor and four upper floors. There are windows and goods doors on three sides in all the upper floors and skylights in the roof, which has sloping sides to a flat central area. A timber extension may have housed a pneumatic intake for grain. The ground floor has a vehicle entrance from the street, with corrugated iron doors extending up into the first floor. The floor and roof beams are of timber supported on timber columns, some of which have been replaces/repaired with cast iron/steel. There are tie bars running in both directions: The north/south tie bars have external plates at both ends; the east/west bars have external plates on the east side and are bolted or crudely hooked to the beams.
There is a lift shaft above the vehicle access over which, on the top floor, there has been a hoist; the remains of a fuse box suggested this had been worked electrically. There had also been a small hoist above the riverside doors.
Timber staircases connect all floors. A series of wooden chutes descend from the top to the first floor, where they terminate on a moveable table system leading to a hand winch by the loading bay. Braking effect on the chutes is provided by weighted boxes hinged about half way down each one.
There is no other sign of machinery or equipment.
It would seem from the appearance of the river frontage that the largest craft that could have come alongside would have been something like a lighter, not above 50ft in length and would have had to be manhandled into position.
Interior
River frontage
History
1860 — Previous building on site: no details known.
1866 — New building occupied by Wm. Darnell, Granary Keeper, later Darnell & Sons (Darnell also used Bennetts Lower Wharf nearby: see GLIAS report).
1879 — Occupier: Robert Murrell, Granary Keeper.
1891 — The premises had become London Grist Mills with Robert Murrell as Manager. (He was also the occupier of East Lane Wharf as Wharfinger.)
1892 — The London Grist Mills Co. now had Thos. Skelton as Proprietor, a corn merchant. This usage continued through two World Wars until 1940 when the occupiers become Prior J.J. (Transport) Ltd, Motor Haulage Contractors and Prior J.J. (Aggregates) Ltd, Sand and Gravel Quarry owners.Sometime thereafter and before 1955 it would appear that the building was acquired by Chamber Wharf & Cold Stores Ltd. as their Wharf 'Y' and it became part of a considerable property which they owned in the area. Chambers were later taken over by Hay's Wharf Ltd.
It would seem, therefore, that milling machinery was installed in 1890/91 and probably remained until J.J. Prior took over. The Quinquennial Valuation of 1925 showed that Thomas Skelton had in his Mill and Granary:
4 elevators of about 50 ft.
On the ground floor:
2 gas engines of 14 h.p.
1 oat-clipping machine
35 ft. of 4" shafting
18 ft. of 2½" shaftingOn the first floor:
2 oat crushers
1 maize crusherOn the fourth floor:
4 chain hoists
1 worm conveyor 24 ft.
1 worm conveyor 13 ft.
Various lengths of shaftingThe 1930 valuation showed much the same equipment.
Plan at second floor, June 1979
Sketches of interior columns. Several of the wooden ones were reinforced with angle iron.
Acknowledgements
Drawings are by John Pattle and Tim Kendell, text and research by Colin Phillips and typing by Youla Yates, while Henry Williams, Stephen Hilsum and David Warren helped in site measurement and discussion.
A copy of this report with additional photographs (plus the report on Lower Bennetts Wharf) is deposited at L.B. Southwark Local History Room, John Harvard Library, Borough High Street.
We hope that more members will submit similar reports for publication in future Newsletters.
Royal Albert Dock incinerator plant
© GLIAS and authors, 1979