Rotherhithe Hydraulic Pumping StationTim R Smith
pdf version Introduction
By chance, in 1999, I went to look at Rotherhithe hydraulic pumping station, Renforth Street (TQ 3538 7958), when a site meeting was under way. I asked if I could look round, and arranged to visit the site a week or two later. In the meantime I was put in touch with the archaeologist involved, Duncan Hawkins. I had my visit on 4 August when the photographs in the article were taken. The buildings have since been converted to dwellings which form a gated community.
History
The London Hydraulic Power Company (LHP) was a public utility that sold water at a guaranteed pressure of 700 psi (about 48 bar), for powering machinery. It charged so much per 1,000 gallons (4,500 l), on a sliding scale. LHP operated from September 1883 until 2 July 1977. In 1860, there was an unsuccessful attempt to set up a public supply company to power hydraulic machinery at riverside wharves. Eleven years later the Wharves & Warehouses Steam Power & Hydraulic Pressure Company was incorporated by Act of Parliament.1 Its powers lay dormant until they were revived, in 1882, when the company was purchased by the newly-formed General Hydraulic Power Company. An Act of 1884 changed the name to the more familiar London Hydraulic Power Company (LHP), a subsidiary of the General Hydraulic Power Company.2 The first pumping station was opened at Falcon Wharf on Bankside in September 1883. A list of LHP pumping stations is given in the table below.
Pumping station Opened Closed Notes Falcon Wharf September 1883 June 1936 Phillip Lane 1884 c.1895 Built to serve new warehouses near London Wall prior to the pipe network reaching that area Kensington Court September 1885 November 1905 Served lifts, working at 450 psi, in Kensington Court, before network reached the area Millbank 1888 January 1910 Site compulsorily purchased by LCC, and now part of Victoria Tower Gardens, south of the Houses of Parliament Millbank extension 1899 August 1910 Site compulsorily purchased by LCC, engines moved to Falcon Wharf Wapping 1891 2 July 1977 City Road Basin October 1894 31 March 1970 Metropolitan Archives B/GH/LH/06/86 gives closure date as shown but B/GH/LH/06/85 gives closure date of week ending 21 May Rotherhithe April 1903 June 1968 Grosvenor Road August 1910 May 1971 Replaced Millbank East India Dock 1857 July 1970 Taken over from Port of London Authority in December 1961
In 1891, LHP opened a pumping station at Wapping to serve the London & St Katharine Docks and riverside warehouses in that area. Following the success of Wapping pumping station, Edward Bayzand Ellington (1845-1914), the chief engineer, was authorised, in November 1897, to begin negotiations with James Gaskell, with a view to securing a site for another pumping station, and, at the same time, winning custom from the Surrey Commercial Dock Company.3 Like the London & St Katharine Docks, the Surrey Commercial Docks had its own hydraulic network, served by two pumping stations opened in 1872 and 1876. LHP claimed to be able to supply power cheaper than the dock company could produce its own power, a good incentive for the dock company to agree to the LHP proposals. After a year of negotiations agreement was reached. In February 1899, LHP acquired the freehold of a site on the west side of the docks, near the Albion Dock, in Renforth Street, Rotherhithe. Another year passed before contracts for building work were let, to John Mowlem for £19900 for building work, and to G & W Walker Ltd for girders, columns and tanks. Hugh A. Pope was appointed Clerk of Works at a salary of £250 per annum. In 1901 Mowlem's were awarded a second contract to build the foreman's house.4
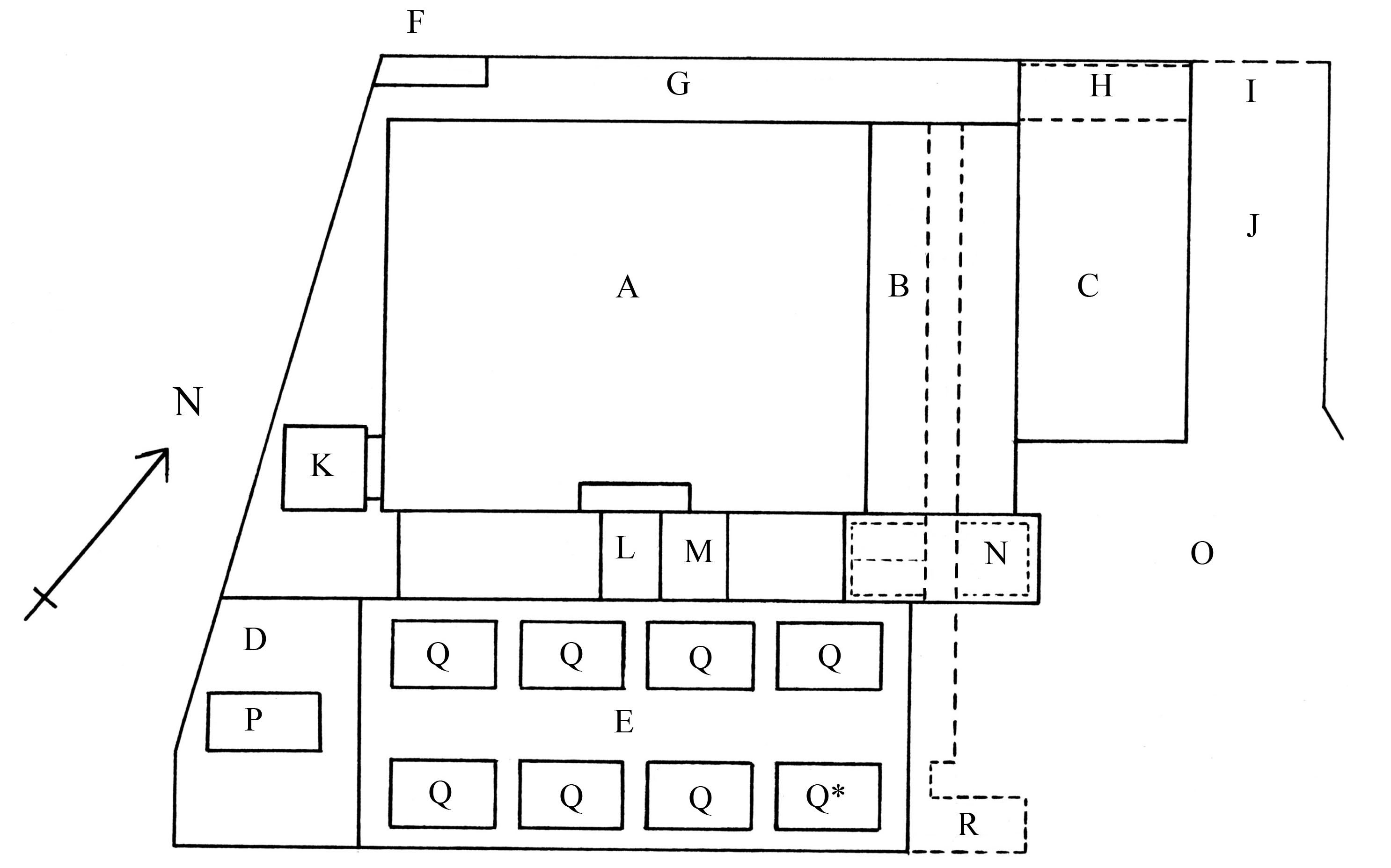
Figure 1. Plan of main buildings
A Boiler House
B Filter House
C Coal Store
D Workshop
E Engine House
F LEB Sub-station
G Lower ground level yard
H Passageway under coal store
I Gate
J Roadway up to upper ground level yard
K Chimney
L Passage
M WCs
N Accumulator Tower
O Upper ground level yard
P Site of Parson's steam turbine
Q Engine bed
Q* On electrification this engine bed was reduced in size and used for two tank pumps
R Access to lower ground level and engine house basement
Six, inverted-vertical, triple-expansion, steam pumping-engines were ordered from the Hydraulic Engineering Company of Chester. A further two steam pumping-engines were ordered in 1903. Boilers were supplied by T Beeley of Hyde Junction Ironworks, Manchester.5
Building work was completed by 1902, the date shown on a plaque affixed to the accumulator tower. Testing of the pumps began in late 1902, and the station began pumping in earnest during the week ending 2nd April 1903. With eight triples, Rotherhithe was one of the larger LHP pumping stations. By 1906, over 215 million gallons per annum (1,000 million litres per annum) were being pumped, about 22% of the LHP total, but well below the station's capacity. In 1916, when Wapping pumping station was virtually idle, Rotherhithe pumped over 330 million gallons (1,500 million litres), 29% of the LHP total.6 For a few years after the opening of Rotherhithe pumping station, LHP supplied steam to Brandram's works next door.
In 1910, Rotherhithe was supplying around 30 million gallons per annum (140 million litres per annum) to the Surrey Commercial Docks. This represented about a third of the Docks' demand, most of it at night when the dock pumps were shut down. The Port of London Authority had four sets of pumps and eleven boilers at the Surrey Commercial Docks. Their engineer proposed to scrap one of the engines and five boilers, to upgrade the other boilers and to run the station day and night, any shortfall in supply being bought from LHP. This was agreed.7
Figure 2. The yard to the south showing the foreman's house, left, and the 3-foot gauge tramway from Albion Dock, which entered the site through the gates at top left. The branch to the right led to the strategic coal store, which held 500 tons. Underneath the portacabin the tramway ran over a weighbridge.
Changes came towards the end of the 1920s, when an agreement was reached with the PLA for LHP to supply all hydraulic power to the London & St Katharine Docks and the Surrey Commercial Docks. Wapping pumping station was enlarged with the installation of a Parsons steam turbine and Babcock & Wilcox boilers. Then, in the week ending 10 November 1927 a Parsons steam turbine was brought into use at Rotherhithe. To supply steam, the old boilers were replaced by Babcock & Wilcox boilers.8
Rotherhithe was the last of LHP's pumping station to be electrified, the steam engines being finally stopped in the week ending 31 March 1961. The steam turbine was last used in July 1959. Final closure of Rotherhithe came in June 1968.9 It is said that one or more of the pumps were taken to Egham for re-use. By this time the offices of the company had been moved to Rotherhithe.
The site
The land on which the pumping station stood was in an angle of the western boundary of the Surrey Commercial Docks, from whom it was purchased in 1899. A former drainage ditch provided a natural boundary to the dock property. Beyond the boundary to the south-west was the Neptune Street chemical works of Brandram Bros & Co Ltd, a firm which had been established in the early nineteenth century. To the north-west were rows of terraced houses; to the east lay the Dock Company's Albion Yard.
Figure 3. The yard to the north of the boiler house (right) with the coal store ahead. The pipe running down the left-hand corner is the overflow from the roof-top tank. The building between the coal store and the boiler house was the filter house.
The site of the pumping station had been used for tipping spoil, probably from the building of the Canada Dock, built in the 1870s, and from which a double line of railway was shown on the 1894-6 OS plan.10 The tunnel of the East London Railway crossed the eastern half of the site. Because of the tipping, the land to the north-west of the site was about ten feet (3 metres) lower than that to the south. For the purposes of this article it is referred to as lower ground level, whilst the rest of the site is referred to as upper ground level. Thus the boiler house was built on the lower ground level whilst the engine house was on the upper ground level.
The arrangement of the buildings on this site was quite different to Wapping, in that the boiler house was alongside the engine house rather than in line with it. (Figure 1) The accumulator tower was just outside the engine house, in a similar position to Wapping. The coal store lay to the east of the boiler house with filter house between, thus splitting the roof-top tanks into two distinct groups. The tanks above the coal store were somewhat higher than those above the boiler house.
Figure 4. Roof top tank over the boiler house and, at a higher level, the coal store. The circulating delivery main can be seen coming over the side of the lower tank, with a branch feeding the second tank coming towards the camera. Behind, to the right, is the accumulator tower.
The tramway
A tramway was built from Albion Dock to bring coal to the coal store. A 20-cwt (1 tonne) moveable hydraulic pedestal crane was provided at the dock. 'Coalies' were employed to fill the crane bucket until 1922 when a grab was fitted. On 15 June 1901, a tender of £250 for building tramways was accepted from Dick, Kerr & Company, well-known builders of street tramways.11 The 3-foot (0.9 metres) gauge line, of 60lbs per yard (90 kg per metre) street-tramway section rail in 24-foot lengths, ran from the Albion Dock, through a gate on the east side of the site and into the coal store at upper ground level. The OS plan showed two sidings at the dock end. Part of the tramway survived in the yard. (Figure 2) There was a loop in front of the foreman's house and a weighbridge, which in August 1999, was partially hidden beneath a portacabin. A single line ran into the coal store. Lines branched off both lines of the loop, curving southwards, converging to a single line which continued to curve round to the south-west, to the site of the former strategic coal-store, which had been demolished. For most of the tramway's life, the motive power was a horse. But in 1947 LHP purchased a Lancing Bagnall Model 'A' Tractor for £510 and horse haulage ended.12
Coal stores
There were two coal stores at Rotherhithe pumping station. One was built as part of the pumping station, and still survived. (Figure 3) The second was added in 1907 to hold a strategic reserve of coal for LHP as a whole, in case of shortage of supply caused by, for example, strikes. Ellington originally planned to build a strategic coal store to hold 500 tons (500 tonnes) at Wapping but because of foundation problems there he recommended that the store should be built at Rotherhithe instead. The Rotherhithe store cost £1,300 and held 1,200 tons (1,200 tonnes). As noted, it had been demolished.13
Figure 5. Engine house basement plan
Note: all engine beds had been enlarged with mass concrete to form bases for electric pumps. All had pipe runs and holding down bolt tunnels.A Engine Bed
B Brick arch for supporting main suction pipe
C Former steam engine bed used as plinth for tank pumps
D Tank pump machine base
E Tank pump machine base
F Steps up
G Pillar which supported air vessel
H Arched opening at lower ground level for pipes
I Door
J Square hole at ceiling level (blocked) for main suction pipe
K Pipe from sump
L Switch box, 440V, 300A
M RSJ
N In ceiling, bedplate of Parson's steam turbine
The Station Coal Store was a three-storey building, built into the spoil bank, so it had only two storeys on the south side. It was located at the north-eastern end of the boiler house range and had a roadway running past, to a gate on Renforth Street. It was rectangular in plan and had five semicircular, giant arches on the roadway side, with windows at first floor level and blind below. Another roadway passed under the end bay to the boiler house.
The building had undergone several alterations since it ceased to be used as a coal store. At the lower end there was a room under the upper ground floor, with an inserted door and window. At the south-east end steps had been built to a new door at upper ground level. A first floor had been inserted with stairs up to it. On this floor were the remains of a bathroom. The coal store was possibly the site of the offices after their removal from Grosvenor Road. Later it was converted to a dwelling, hence the bathroom. There was a large tank on the roof, see below. (Figures 3 & 4)
A beam along the south-east wall under the passageway, at upper ground floor level, suggested that there had been an opening to allow coal to fall down into the passageway. Along the outer wall, both in the passageway and along to the boiler house, there were remains of brackets, which could have supported a conveyor. A coal conveyor, worked by Pelton wheel, is known to have been used at Rotherhithe.14
Water supply
Under the agreement between the Dock Company and LHP, water was taken from the Albion Dock to a sump in the south yard. There was probably a syphon pipe, as at Wapping pumping station, but the water could have been pumped from the dock. From the sump, water was pumped into the 'unfiltered water' tanks on the roof of the coal store. (Figures 3 & 4) A pipe, 18 inches (0.45 metres) external diameter, emerged from the sump into the lower ground floor of the engine house. At the north-east end of the engine house there was a chamber, with a staircase leading from the yard. Under these stairs, there were three low-pressure pipes, one of which appeared to be equivalent to the sump pipe at the other end of the engine house. All these pipes, which went no further than the chamber, seemed to have passed through arches in the wall between the chamber and the engine house. The nearest engine bed had been reduced in height and had two small machine beds on top of it. The whole area of this former engine bed was in a cage. The small machine beds could have supported two electrically driven centrifugal pumps, 'tank pumps', used to pump water up into the roof-top tanks following electrification. How this was done prior to electrification is a matter for conjecture, but there might have been one or more hydraulically operated pumps within the sump, as there were in the well at Wapping. A 'circulating pump' capable of pumping 270 gallons per minute (1,200 litres per minute) is listed in the Specification for Rotherhithe pumping station.15
Another low-pressure pipe, 18 inches external diameter, passed through the wall of the tunnel close to the above-mentioned chamber. It, too, had been cut off. There appeared to be another chamber beyond the wall, possibly with access from the yard above; perhaps the remains of the chamber housing the dock meters, since the supply to the docks was metered on site.16
There were marks on the south-east wall of the coal store, leading to brackets on the edge of the roof-top tank, suggesting that a pipe once ran up the wall to the tank. This might have been the pipe from the sump feeding the 'unfiltered' water tanks. This roof-top tank was divided into two, south-east and north-west. There were two pipe connections between the two halves. Each half had two overflow pipes, leading down to a ring main which could be seen in the top floor of the coal store. This ring connected with a drain pipe that ran down the outside of the coal store wall, near the north corner. Another pipe crossed from the north-west half of the coal store tank to the boiler house tanks, with outlets to each tank. There were various valves to control the flow of water.
This arrangement represented the situation after electrification and seems to have been rather different to that before electrification. When the station was built the water circulation would be similar, though not identical, to that at Wapping. Water from the unfiltered water tank on the roof of the coal store was fed, by gravity, through filters in the adjacent filter house. At Wapping, filtered water passed into large underground storage reservoirs, but none were provided at Rotherhithe. The circulating delivery pipe, as it was called, was still in situ, on the south-east wall of the boiler house, with valves and connections at tank level. Filtered water from these tanks passed down through the main suction pipes to the pumps in the engine house. Again these pipes could still be seen in the top of the boiler house. The arrangement of the main suction pipe in the lower ground floor of engine house had been lost, but two branches of it probably ran along the tops of the brick arches between the engine beds. There would have been a branch to each pumping set and probably two air vessels connected to it somewhere. These would project into the upper level of the engine house (at Wapping they are at each side of the door).
Filter house
The building between the coal store and the boiler house had composite wood, steel and cast iron roof, Polonceau type, trusses of early twentieth century date and appeared to be contemporary with its neighbours. There was a raised lantern, or clerestory, running along the roof ridge. Like all the other buildings on site it had been stripped of machinery and equipment. The floor had been re-screeded and the walls rendered so there was no evidence visible of its former use. The 1930s outline plan of Rotherhithe did not ascribe a function to it. It was probably the filter house. The original plant at Rotherhithe included filters and this seemed to be the most likely place for them.
Eight 'Torrent' filters were ordered in 1900 from the Pulsometer Engineering Company, and further filters were bought in 1902.17 A photograph in an undated brochure of the Pulsometer Engineering Company showed the inside of a filter house, with two rows of rectangular Torrent filters. The roof trusses looked identical to those at Rotherhithe, and, as the caption states that the filters were for filtering 60,000 gallons of river water per hour, for hydraulic purposes, we can be almost certain that the photograph was of an LHP station, possibly Rotherhithe.
Just how filtration at Rotherhithe was achieved is open to question. At Wapping, water fed by gravity from the roof-top tanks through the filters into underground reservoirs. From there it was pumped back into the filtered water roof-top tanks (header tanks), via the surface condensers of the steam engines. At Rotherhithe there were no underground storage reservoirs. The floor of the filter house building was raised above lower ground level and a tunnel, about six feet wide ran under it, from north to south. Were there low-level storage tanks under the rest of this building, on each side of the tunnel? It seems unlikely that water was pumped directly from the filters to roof-top tanks as that could cause problems if the filters became blocked, or the suction pipe lost water for any reason. A far better arrangement would involve the use of a low level tank as a buffer. If, as at Wapping, filtered water was used for the steam engine condensers, there would almost certainly have to be a low-level tank somewhere.
There is a possibility that, since the boiler house rooftop tanks were lower than the coal store tank, the water was syphoned through the filters and back up into the tanks. If this was the case, the engine condensers were, presumably, by-passed and another supply would be needed for them. a supply for the boilers would also be required.
The height difference of the roof-top tanks and the surviving pipework appeared to show that the tanks over the coal store were the unfiltered water tanks and those over the boiler house acted as clean water tanks and, therefore, the header tanks from which the main suction pipe supply came. This was confirmed by the presence of the main suction pipes mentioned above.
At Wapping the filtering of water seemed to have been abandoned in the 1920s as it was found that settlement of sediment took place in the Shadwell Basin, from which water was taken, and in the unfiltered water tanks. Later, however, a Rotoklene strainer was installed on the circulating pipe system there. The 1930s outline plan of Rotherhithe seemed to suggest that filtering of water had, by that time, also ceased there. But, as at Wapping, a Rotoklene strainer was installed in the 1950s.18
The boiler house and chimney
The boiler house was roughly square in plan with a clear height of 18 feet to 20 feet (5.5 to 6 metres). The tanks above it were supported on deep, H-section, plate girder beams resting on intermediate riveted plate stanchions of H section, the beams running south-east to north-west. South-east, north-east and south-west walls were of brick; the north-west wall comprised corrugated iron sheeting.
The original order was for three boilers, from Thomas Beeley & Sons and these were probably straightforward Lancashire boilers rather than type supplied to Wapping, since they excluded superheaters. The order was later increased to six and a further three were ordered towards the end of 1900.19 Almost certainly they had mechanical stokers and an economiser. These boilers were all replaced by Babcock & Wilcox boilers around 1930.
Map evidence suggested that the boiler house originally extended to the site boundary along Renforth Street, and had been cut back to its present limit when the boilers were replaced. This would account for the corrugated iron of the north-west wall. There was a buttress against the wall dividing boiler house from filter house, but was not on the line of the original wall, and was never part of it. On the boundary wall opposite there was a corresponding brick pier. Both buttress and pier have gate brackets. Nevertheless there was evidence of alterations in the brickwork in the top corner between north-west and south-west walls of the boiler house.
Along the inside of the boundary wall between the boiler house and the coal store there were pairs of bolts at about 6-foot (1.8 metres) intervals, and set about 2-foot (0.3 metre) apart, one above the other, the lower bolts being about 18 inches (0.45 metre) above ground level. Under the coal store arch, in addition to the bolts, there were a number of concrete pillars about 12 inches (0.3 metres) high and 12 inches (0.3 metres) wide. Perhaps this was the position of the coal conveyor.
Figure 6. The engine house viewed from the south yard.
At the south-east side of the boiler house there were steps leading up to a corridor to the engine house. To the west of these steps a doorway led through to a room underneath the area between the engine house and the boiler house and, from there, through to the engine house basement. Pipes underneath the ceiling were the main suction pipes.
The boiler house floor had been re-screeded and the walls rendered. The flue had been blocked up and there was no evidence of it within the building. It could still be seen on the outside of the building, between the south-west wall and the chimney base. The chimney itself had a tapering octagonal shaft, with cornice, on a square plinth. Its survival was unusual at a hydraulic pumping station.
The engine house
The engine house was a tall building in yellow stock brick with red-brick string courses, rectangular in plan and a clerestory roof. (Figures 5 & 6) Roof trusses appeared to be of the Polonceau type, similar to Wapping. (Figure 7) The building was seven bays long by three wide. Along the longitudinal walls ran a track for an overhead travelling crane. There was a large door at the east end through which machinery could be taken. A door at the west end led to further rooms, discussed below. As with other buildings all machinery had been removed and the floor had been re-screeded so evidence of engine beds, pipe ducts and electrical switchgear was absent from the upper ground floor. Fortunately this was not the case with the lower ground floor where there was much to see. Brackets high on the walls of the engine house probably supported steam pipes.
The 1930s plan showed the room on the south side to have been a workshop. The area was divided into three sections. At the north-east end of the south-east section there was a fireplace. Otherwise this area, and the other two, had been much altered with the addition of false ceilings and partitions. In the centre of the 1930s plan a rectangle was depicted which probably indicates the position of the Parsons steam turbine which was installed in the late 1920s. Evidence in the basement appeared to confirm this.
Figure 7. Inside the engine house looking towards the workshops. Note the tracks for the overhead travelling crane. The door on the right led to the boiler house.
In the lower ground floor, or basement, of the engine house there were eight engine beds, corresponding to the original eight inverted-vertical triple-expansion, surface condensing steam pumping engines. Seven had been altered from the original steam engine beds to machine beds for the electrically driven threethrow ram pumps. There was still visible evidence of the original engine beds, which, as at Wapping, consisted of sandstone blocks embedded in mass concrete. The change from engine bed to machine bed was achieved by adding more mass concrete sections whilst leaving appropriate gaps for pipe runs. There were holes giving access to the lower ends of holding down bolts.
A feature of the Rotherhithe engine house basement not seen at Wapping was the arches which span the central aisle between the machine beds. (Figure 8) It is possible that these features were to be found in the original arrangement at Wapping, but Wapping was altered in the early 1920s when two additional machine beds were introduced in the central aisle for two Mather & Platt electrically driven turbine pumps. Machines of this type were never fitted at Rotherhithe. The arches at Rotherhithe probably supported the main suction pipe and its branches to each pump. The pipe runs in the engine beds suggested that the hydraulic mains ran down the centre aisle at floor level, as at Wapping.
The eighth engine bed, in the south corner, had been reduced in height to carry two Tank Pumps, electrically driven centrifugal pumps used to pump water through the circulating mains to the roof-top tanks. Two small machine beds sat on top of the reduced engine bed and were surrounded by a cage. Access was by steps.
At the south-west end, under the former workshops, there were two parallel rolled steel joists at ceiling level. Between them there was a bed, possibly of concrete (it was painted black), with various holes including one large oval indentation. This was probably the machine bed for the Parsons steam turbine. Also in this area, in the 'west' corner, there was a 400 volt, 300 amp ac power supply and switchgear.
Figure 8. In the lower ground floor (basement) of the engine house, looking west down the central aisle, showing the brick arches which once supported two sections of the main suction pipe. Engine beds can be seen to left and right of the aisle.
The accumulator tower
At the east end of the engine house basement there was access to the tunnel under the filter house. The tunnel passed through the centre of the accumulator tower. On the east there was a chamber underneath half of the accumulator tower, an inserted modern floor above it. The concrete floor of this chamber was 27 inches (0.7 metres) above the floor of the tunnel, and formed the bottom of the accumulator tower. Holes cut into the side-walls, 24 inches (0.6 metres) from the end on the north-east side, 24 inches (0.6 metres) from the edge of the tunnel on the south-west side, contained stout 12-inch (0.3 metre) square timbers, above which were sandstone blocks. These correspond in position to the accumulator guides, which, still in situ above the inserted floor, projected out into the tower and were angled to give the diagonal guides favoured by E B Ellington. The tops of the guides were bridged by the usual buffer timbers. At lower ground level, opposite the first chamber there was a similar chamber crudely divided into two bays by an inserted partition.
The accumulator tower was a tall structure, rectangular in plan, and with a number of boarded openings. (Figure 9) There was a boarded plaque on the south side which was said to commemorate the completion of the building in 1902. On the east wall of the tower there was a tall arched opening which had been carefully in-filled with brickwork similar to that of the rest of the tower. This was probably used as access to the tower during installation of the accumulators. The accumulators were probably cut up before removal.
The accumulator tower was of a generous size, in plan, compared to Wapping, the accumulators being accommodated one each side of the tunnel. The tower seemed not to be as tall as the Wapping tower. Access to the inserted floor was through the filter house. There was probably always a door there, perhaps with a ladder to the lower level.
Figure 9. The accumulator tower from the south yard. The engine house is on the left, the coal store is behind the tree on the right. Note the boarded-up plaque on the wall of the tower. It is said to bear the date 1902.
Roof-top tanks and pipework
There were three roof-top tanks, one at a higher level over the coal store and two at a lower level above the boiler house, the difference in level being about 11 feet (3.4m). (Figure 4) The tanks themselves were formed of two rows of cast-iron panels. Each panel was 5 feet high (1.5m) and 4 feet 6 inches (1.35m) wide with flanges around the edges, to allow them to be joined together, and horizontal and vertical strengthening ribs on the inside. Inside each tank there were steel tie-rods, with turnbuckles to allow them to be tensioned, across the tank and diagonally across each corner. The tanks have been described as Braithwaite Tanks, but the 'Braithwaite tank', manufactured in South Wales by Braithwaite & Co, was made of pressed steel, not cast iron.
The tank over the coal store was divided transversely into two. Holes through the division plate could be closed off by sluice valves. Each section of tank was provided with two overflow pipes with screw-down valves, one on each side of the tank. The overflow pipes fed into a ring main beneath the tank which itself was connected to a large pipe which ran down the outside of the coal store on the west corner. There was a bracket on the tank near the south corner of the south-east end which, together with marks on the coal store brickwork below, suggested that the inlet pipe from the sump ran up the wall to the tank at that point. Holes cut in the floor of the tank presumably once took water to the filter house. At the north-west end of the tank a pipe ran from the bottom of the tank out across the filter house roof and over the boiler house tanks. There was a valve to control outflow to the first tank, and the pipe ran on to end over the second tank.
The two boiler house tanks were separated by a large skylight, the only natural illumination for the boiler house. Each tank had two overflow pipes with screw-down valves at the mid-points of the shorter sides. The circulating delivery main was in situ running up the south-east wall of the boiler house and over the tank side where there were valves so that water could be diverted into either tank. Holes in the bottoms of each tank allowed water to pass into the main suction pipes, one of which was in situ next to the circulating delivery pipe on the boiler house wall. Within the boiler house the two main suction pipes could be seen under the tanks. The two tanks over the boiler house were connected by two pipes crossing the skylight, each with valves.
Access to the tanks was through a door from the engine house and by way of an iron staircase from the light-well between the boiler house and the engine house, to the north-east of the connecting corridor. A wooden walkway ran along the top of the boiler house tanks, on the south-east side and continued part way along the accumulator tower wall to another iron staircase which gave access to another walkway along the top of the north-west side of the coal store tank. Both walkways were protected on the outer edge by iron railings.
The tunnel
The tunnel under the filter house led from the small yard on the north-west side to the engine house basement. There was an access point to the tunnel and engine house basement opposite the accumulator tower, in the yard outside the engine house.
The tunnel was six feet wide and perhaps seven feet high with a shallow segmental arched roof. About ten feet or twelve feet in from the yard the arch had been broken and a cast iron plate, 12 inches (0.3 metres) wide, inserted, its purpose being unknown. The floor of the tunnel was 27 inches (0.7 metres) lower than the bottom of the accumulator tower, but on the same level as the engine house basement, lower ground level. There was evidence of a drainage channel down the centre of the tunnel. The tunnel widened south of the accumulator tower and various pipes were visible in the sidewall, all cut off.
Shining a torch through a low-pressure pipe appeared to reveal a chamber about ten feet to the north-east of the tunnel. In the yard above there was an LHP stop valve cover over this chamber.
Significance of Rotherhithe Pumping Station
Remains of only three of the LHP pumping stations survive, at Wapping, Rotherhithe and Kensington Court. The latter was always of only local importance and played no part in the maintenance of the high pressure system. It has been converted into a house. Wapping pumping station is extremely important as it still contains some of its electric pumps and much of the engine house pipework. Rotherhithe pumping station is complementary to Wapping, though not quite as important; it is, nonetheless, a worthy survivor. Nationally, it is amongst the most important surviving hydraulic pumping station buildings. Out of a total of about 90 it surely ranks in the top twenty. It is one of only a handful to retain its chimney. The buildings have since been converted into dwellings.
Acknowledgements
My thanks are due to John Bartlett for allowing me access to the site in 1999, to Russell Mady for showing me round and to Duncan Hawkins for a copy of his 'Former Pumping Station, Renforth Street London SE16, Archaeological Desk Based Assessment and Baseline Building Survey, June 1999'.
Notes and references
1. 34 & 35 Vict Ch 121 (RA 13 July 1871)
2. 47 & 48 Vict Ch 72 (RA23 June 1884)
3. Metropolitan Archives, Minutes of the London Hydraulic Power Company, 3 November 1897; 1 February 1899; Port of London Authority Archives, Minutes of the Surrey Commercial Dock Company, 18 November 1897; 6 January 1899
4. Metropolitan Archives, Minutes of the London Hydraulic Power Company, 17 January 1900; 6 March 1901; 21 March 1900
5. Metropolitan Archives, Minutes of the London Hydraulic Power Company, 17 January 1900; 20 May 1903
6. Metropolitan Archives, London Hydraulic Power Company, Engine Room Registers
7. Port of London Archives, PLA Dock & Warehouse Committee Minutes, 27 April 1910
8. Metropolitan Archives, London Hydraulic Power Company, Engine Room Registers
9. Ibid
10. O S Plan, London Sheet V.16, The Godfrey Edition, London Sheet 78, Rotherhithe 1894
11. Metropolitan Archives, Minutes of the London Hydraulic Power Company, 15 June 1901
12. Metropolitan Archives, Minutes of the London Hydraulic Power Company, 23 July 1947
13. Metropolitan Archives, Minutes of the London Hydraulic Power Company, 2 January 1907
14. Metropolitan Archives, London Hydraulic Power Company, Miscellaneous Hydraulic Data file
15. Metropolitan Archives, London Hydraulic Power Company, Rotherhithe Pumping Station, Contract Specification
16. Metropolitan Archives, London Hydraulic Power Company, Borough Mains diagrams, No 2a (undated)
17. Metropolitan Archives, Minutes of the London Hydraulic Power Company, 21 February 1900; 5 February 1902
18. Metropolitan Archives, Minutes of the London Hydraulic Power Company, 12 October 1955
19. Metropolitan Archives, Minutes of the London Hydraulic Power Company, 17 January 1900; 7 November 1900; 21 November 1900
© GLIAS and authors, 2017